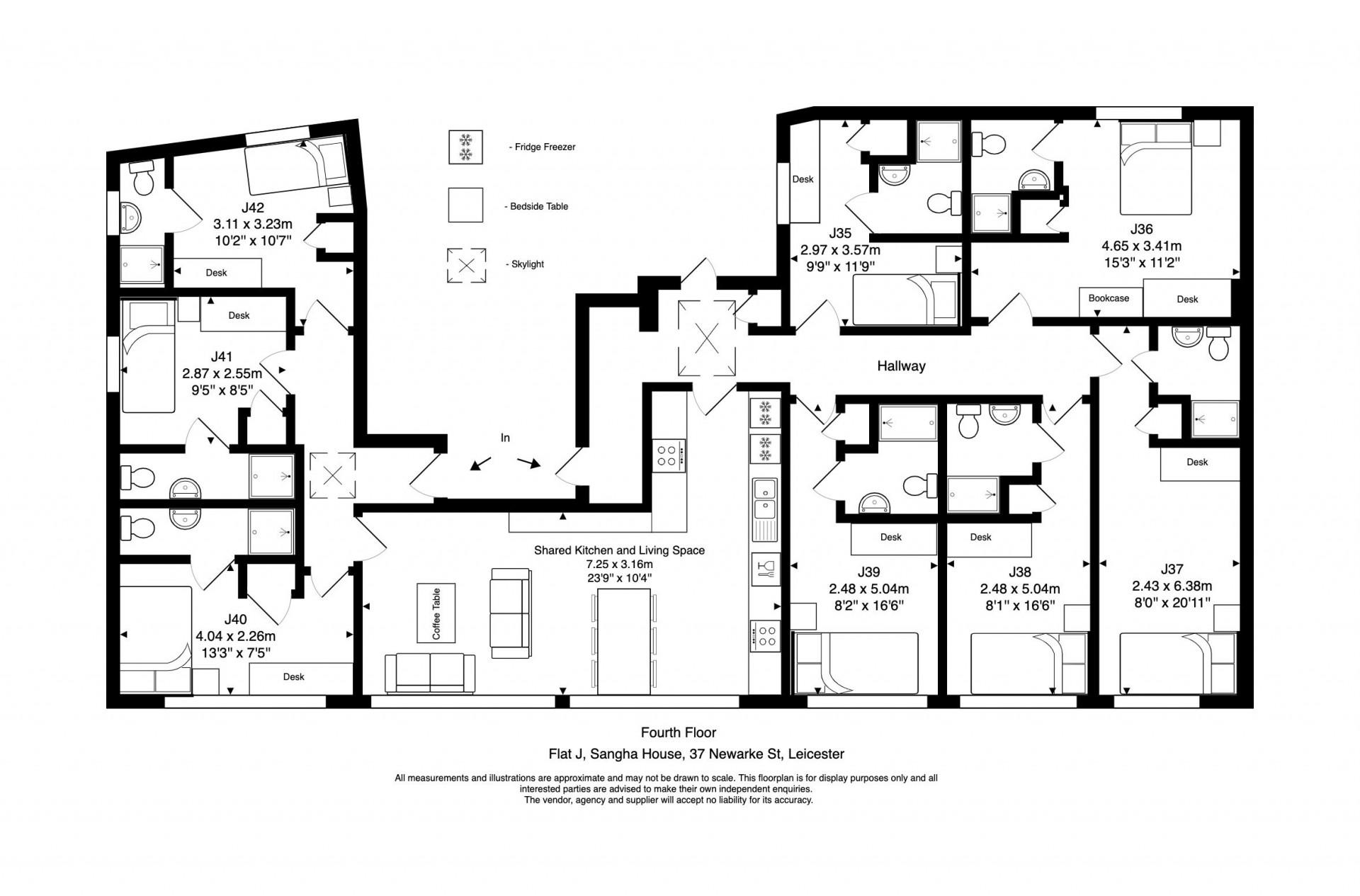
J41, Sangha House, J41, Sangha House Newarke Street
location_onLeicester
calendar_monthAvailable 01/08/2026
account_balance_walletBills included
bedroom_parent 1 bed
From £130/ Week
About
Price - £130 inc of bills per week
Council tax band - D
EPC Rating - C
Looking for a comfortable, sociable, and budget-friendly student home?
This 8-bedroom shared flat offers the perfect mix of privacy, community, and modern living — ideal for students who want great value without compromising on quality.
Your Room
This room features a double bed, making it a more affordable option while still providing everything you need for a comfortable student lifestyle. Each bedroom is fully furnished with a study desk, plenty of storage, and your own private en-suite bathroom — giving you comfort and privacy whenever you need it.
Shared Living Space
The open-plan living area creates a relaxed and friendly atmosphere, perfect for hanging out with housemates, studying together, or unwinding after a busy day.
Fully Equipped Kitchen
Cooking is easy and convenient with:
Two large fridge/freezers
Two cooking areas
Dishwasher for quick clean-ups
There’s plenty of space for everyone to store food, prepare meals, and cook without crowding.
All Bills Included
Enjoy fully stress-free student living with all bills included — utilities, broadband, and more — so there are no surprise costs to worry about.
Prime Student Location
Located close to university campuses, shops, restaurants, and transport links, this flat puts you in the perfect spot for both study and social life.
Video Tour
See more of the flat here:
https://youtu.be/f2jjABOqDXQ
Council tax band - D
EPC Rating - C
Looking for a comfortable, sociable, and budget-friendly student home?
This 8-bedroom shared flat offers the perfect mix of privacy, community, and modern living — ideal for students who want great value without compromising on quality.
Your Room
This room features a double bed, making it a more affordable option while still providing everything you need for a comfortable student lifestyle. Each bedroom is fully furnished with a study desk, plenty of storage, and your own private en-suite bathroom — giving you comfort and privacy whenever you need it.
Shared Living Space
The open-plan living area creates a relaxed and friendly atmosphere, perfect for hanging out with housemates, studying together, or unwinding after a busy day.
Fully Equipped Kitchen
Cooking is easy and convenient with:
Two large fridge/freezers
Two cooking areas
Dishwasher for quick clean-ups
There’s plenty of space for everyone to store food, prepare meals, and cook without crowding.
All Bills Included
Enjoy fully stress-free student living with all bills included — utilities, broadband, and more — so there are no surprise costs to worry about.
Prime Student Location
Located close to university campuses, shops, restaurants, and transport links, this flat puts you in the perfect spot for both study and social life.
Video Tour
See more of the flat here:
https://youtu.be/f2jjABOqDXQ
Amenities and Property Features
CCTV
Central Heating
Cooker
Desk & Chair
Dishwasher
En Suite
Freezer
Fridge
Single Bed
Tumble Dryer
TV (communal)
Washing Machine
WiFi
Map view
Contact about this property
chat
source_environment
Office
34 Oxford Street, Leicester, LE1 5XU
Property FAQs
What do I get with NoPosit?
With NoPosit you get:
- Enhanced Gallagher Insurance Package, including:
£5,000 Accidental damage to landlord's fixtures & fittings
£400 Bike cover
£2,000 Laptops & tablets cover - inside & outside your home
- Automatic entry to our regular competitions
- Access to offers and discounts from the UK’s biggest retail brands with free membership of our exclusive discount club, with average yearly savings of £400+
- When it’s time to move out, you’ll only pay if there’s a problem you’re responsible for*
*You are still liable for any damage and for the condition of your house when it’s time to leave. But
with NoPosit, instead of deductions being made from your deposit, your Gallagher Insurance covers
you for any accidental damage (£50 excess applies to each new claim & insurance does not cover
any malicious damage). T&Cs apply.
What is the payment schedule for NoPosit?
To secure your home, a payment of £99 is required upon signing the contract, followed by an additional £99 payment alongside your first month’s rent.
NoPosit is non-refundable.
What is NoPosit?
NoPosit is an insurance-backed alternative to the traditional tenancy deposit. Instead of paying a 5-week deposit upfront, you can now choose to pay a one-off fee of £198, which provides both landlords and tenants with more protection.
My wifi is having issues, what do I do?
Most of our properties are equipped with either Sky or Virgin WiFi. You’ll need to contact them directly for any support. Here are their contact details:
Sky Support
- Phone: 0333 759 6666 Note: Ignore the residential support prompts and allow the call to connect to the business team.
- Email: groupadmin@skybusinesssupport.sky Please provide the full address, postcode, a description of the issue, and a contact name and number in case an engineer visit is necessary.
- Phone: 0800 052 5761
Be prepared to provide the following information:
- Account Name: Stack Utilities Ltd
- Postcode: Your property’s postcode
- MAC Address: CM MAC (located on the back of the router)
Who do I contact about utilities?
You can reach the utility department by emailing utility@loc8me.co.uk
What do you mean by ‘Fair Usage Policy’?
The Fair-Bills-Inclusive Policy applies to tenants whose rent includes utilities such as electricity, gas, water, and broadband. This policy is designed to ensure that utility usage remains reasonable and proportional. It provides tenants with peace of mind while protecting them from the risk of overspending on these services.
Under the policy, a fair-usage allowance is set, which is the maximum amount tenants can use for these services without incurring additional charges. While the allowance is generous, it applies collectively to all tenants, meaning everyone is responsible for ensuring no one exceeds the limit. If the total usage exceeds the allowance, additional fees will apply. The allowance is typically calculated for a 12-month period, but if your tenancy is shorter, it will be adjusted accordingly.
What’s included in my loc8me house?
This can vary widely! Most properties are fully furnished, typically providing:
- Major kitchen appliances
- Seating
- Bedroom furniture: bed, desk, desk chair, wardrobe, and drawers
What types of accommodation do you offer?
We have a range of properties, from 1-bedroom studios to 19-bedroom mansions. Explore our range
What is the process for applying for accommodation?
It's as simple as 1,2,3...
- Enquire about one or more properties that you're interested in viewing.
- Attend the viewing and see your next future home in person
- Request a contract for the property. This would require us to know all the tenant's first name, email and phone number.